Prodej bytu, 2+1, 61 m²

Moravskoslezský kraj, Ostrava, Kmetská mapa

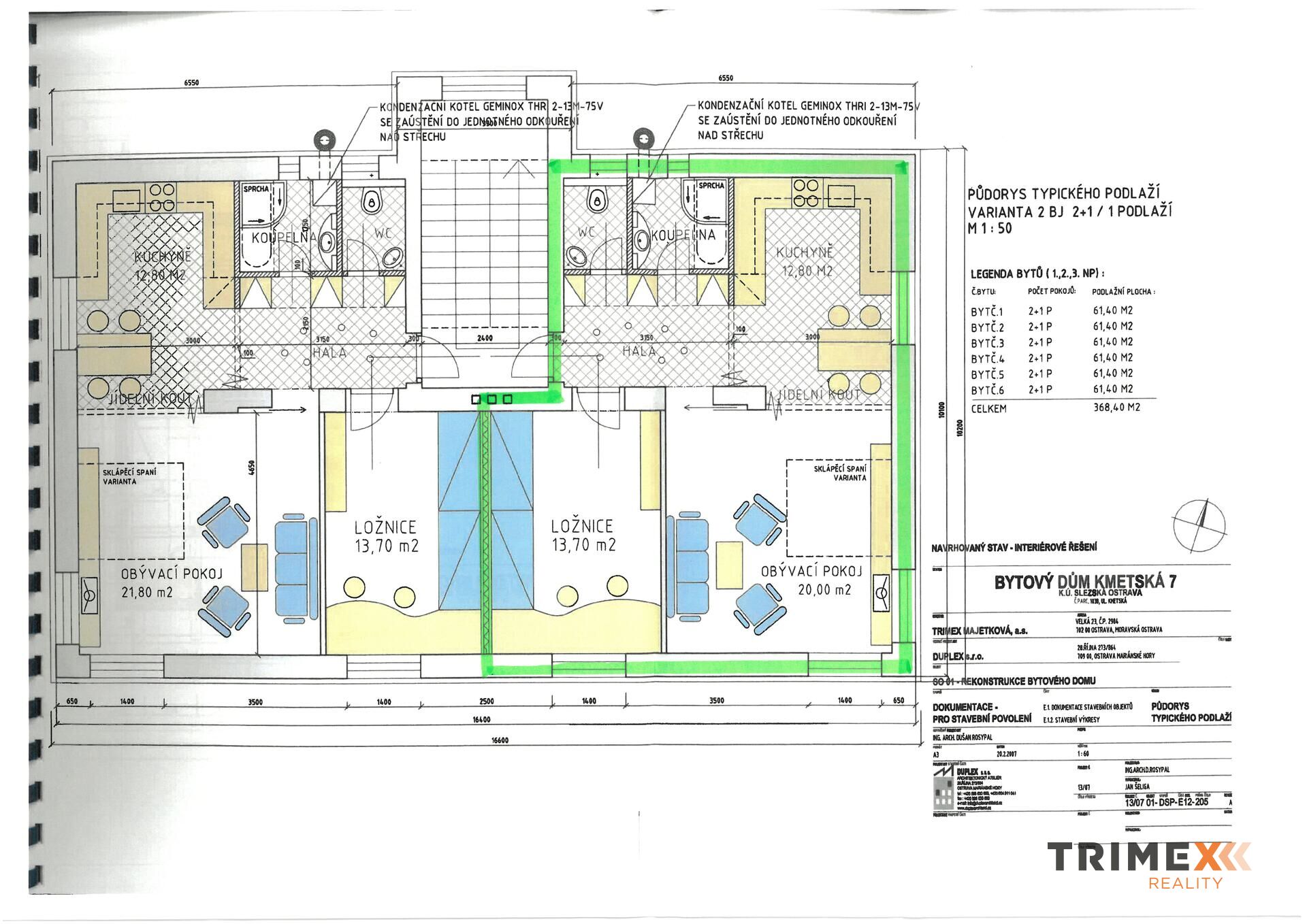
Byt 2+1, ul. Kmetská, Slezská Ostrava

Nabízíme ke koupi bytovou jednotku 2+1 s celkovou výměrou 61 m² v klidné části Slezské Ostravy, v ulici Kmetské. Byt se nachází v poctivém cihlovém domě se šesti bytovými jednotkami. Dům prošel před dvaceti lety kompletní rekonstrukcí, včetně interiérů. V domě je pouze šest bytových jednotek 2+1. U domu je zahrada na obecním pozemku s posezením. Parkování je na ulici. Byt se nachází ve druhém nadzemním podlaží. V chodbě, kuchyni, koupelně a WC je položená dlažba. V ložnici a obývacím pokoji je plovoucí podlaha. Pokoje jsou prostorné a dobře ústavné. Kuchyně má kuchyňskou linku ve tvaru „L“ s dostatkem místa pro jídelní kout. V koupelně je vana, umyvadlo a plynový kotel pro vytápění a ohřev vody. WC je samostatné s oknem. V suterénu jsou sklepy a společný prostor. Příslušenstvím bytu je prostorný sklep o výměře 20 m².

Cena
4 990 000 Kč Za nemovitost
Číslo zakázky
N00546
Typ nemovitosti
Byty
Dispozice
2+1
Celková plocha
61 m²
Druh objektu
Cihlová
Vlastnictví
Osobní
Počet nadzemních podlaží objektu
3
Číslo podlaží v domě
2
Sklep
Ano (20 m²)
Stav objektu
Velmi dobrý
Rok rekonstrukce
2008
Topení
Ústřední - plynové
Elektřina
230 V
Voda
Dálkový rozvod
Odpad
Kanalizace
Plyn
Plynovod
Občanská vybavenost
Škola, Školka, Zdravotnická zařízení, Pošta, Supermarket, Kompletní síť obchodů a služeb
Doprava
Silnice, MHD
Energetická náročnost budovy
C
Charakter okolní zástavby
Obytná
K nastěhování
1. 3. 2026
Užitná plocha
61 m²
Umístění objektu
Klidná část obce

Makléř nemovitosti

Vladimír Kadlečík

Vladimír Kadlečík

Obchodní ředitel

vladimir.kadlecik@trimexreality.cz

Volejte zdarma: +420 800 400 600

Mám zájem o bližší informace/prohlídku

${ success }
${ error }

Hypoteční kalkulačka

nahrávám...
nahrávám...

Nemovitost na mapě

Podobné nemovitosti v naší nabídce

Volejte zdarma
800 400 600